Prefab Cottage Series Prairie 8018-64-3-30

Built by Franklin Homes

No 3d Tour Available

Details

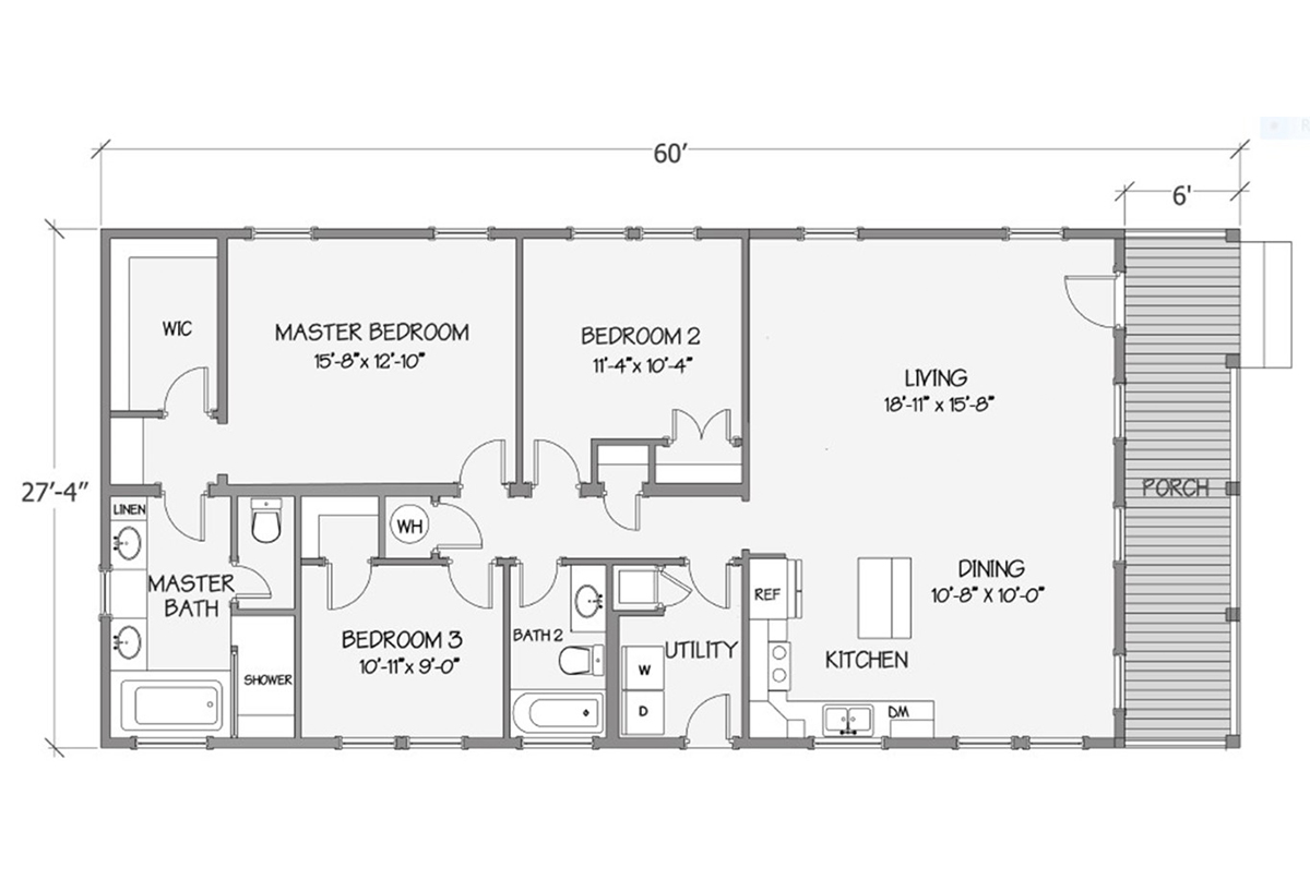
  • 3 Bedrooms
  • 2 Bathrooms
  • 1643 Square Feet
  • 27'4" x 60'0"

About this home

The Prairie 8018-64-3-30, a picturesque haven crafted by Franklin Homes, welcomes you to embrace the charm of countryside living. With 3 bedrooms, 2 bathrooms, and 1643 square feet of meticulously designed space, this home offers a perfect blend of comfort and rustic elegance. From the inviting living areas to the cozy bedrooms, every detail exudes warmth and character. Whether you’re relaxing with loved ones or enjoying the tranquility of nature, The Prairie 8018-64-3-30 provides the ideal sanctuary for creating cherished memories. Experience the serenity of rural life in this exceptional residence.

Specifications

Exterior Wall On Center: 2x6 Exterior Walls 16” O.C. with 2x6 top & bottom plate
Floor Decking: Floor Decking 23/32” OSB
Floor Joists: 2x8 Floor Joists (optional 2x10)
Interior Wall On Center: 2x4 Interior Walls 16” O.C. with 2x4 top & bottom plate
Roof Truss: Minimum 2x4 Trusses 24” O.C.
Insulation (Floors): R-11
Insulation (Walls): R-19
Insulation (Ceiling): R-30
Dormer: Dormer on Front Side with Standard Roof
Front Door: 38” x 82” 6-Panel Steel Exterior Door with Full View Storm Door
Rear Door: 1 Lite Inswing door
Shingles: 30 Year Architectural Shingles
Siding: Premium Gauge Vinyl Siding Installed on “Tallwall” 7/16” OSB Sheathing with AirGuard Moisture Barrier Between Vinyl Siding & Storm Sheathing
Window Type: Vinyl Thermopane Windows with Low-E Glass, Grids & Tilt-Sash
Exterior Lighting: Exterior Light at Entrance Doors
Baseboards: 5 1/4" Baseboards throughout
Ceiling Fans: Wire & Brace for Ceiling Fan in Living Room, Den, and Bedrooms
Ceiling Texture: Smooth Ceilings
Safety Alarms: Smoke Detectors in each Bedroom & Living Area, all Smoke Detectors are Interconnected to Alarm Simultaneously if Any One Alarm Activates
Molding: 5 1/4" Crown Molding Throughout
Interior Doors: 6-Panel Interior Doors
Electrical Service: 200 Amp Service with all Copper Wire
Thermostat: Programmable Thermostat for Heating and Cooling
Washer Dryer Plumb Wire: Plumbed for Washer with leak proof faucet compartment
Water Heater: 50 gal. Water Heater with Pressure Relief Valve with Drain Pan & Dual Elements
Bathroom Flooring: Luxury Vinyl Plank Flooring
Bathroom Faucets: Price Pfister Nickel
Bathroom Fans: Exhaust Fan with Light in Baths
Bathroom Shower: One Piece White Fiberglass Shower Stalls
Bathroom Toilet Type: Elongated “Water Saver” Porcelain Commodes
Bathroom Bathtubs: One Piece White Fiberglass Tub/Shower Combo
Kitchen Sink: Single Bowl 60/40 Farm Sink
Kitchen Refrigerator: 25cu Side by Side LG Stainless Steel
Kitchen Range Type: 30” Electric Smooth-top Range
Kitchen Range Hood: Microwave/Venthood Over Range
Kitchen Lighting: Recess LED Can Ceiling Lights / Chandelier in all Dining Rooms
Kitchen Flooring: Luxury Vinyl Plank Flooring
Kitchen Faucets: Industrial Style Price Pfister Faucet (Nickel or Black)
Kitchen Dishwasher: LG Stainless Steel Pot Scrubber Dishwasher
Kitchen Countertops: Solido Edge Laminate Countertops
Kitchen Cabinetry: 36"/42" Solid Wood Door Cabinetry with Soft Close Doors and Drawers
Kitchen Appliances: LG Stainless Steel Appliances

Photos

Tours and Videos

¿Hablas español?