Franklin Homes​

A Manufacturer in Russellville, AL

About Us

Franklin Homes was founded in 1969 in Russellville, Alabama, on the principle of unsurpassed quality in materials and craftsmanship. Over the past 47 years we have designed, built and installed thousands of homes based on an unwavering commitment to quality. That commitment has earned the company a widespread reputation for producing the highest-caliber modular and HUD homes on the market.

Franklin Homes proudly serves Alabama, Arkansas, Florida, Georgia, Kansas, Kentucky, Louisiana, Mississippi, Missouri, Nevada, North Carolina, Oklahoma, South Carolina, Tennessee, Texas, Virginia, West Virginia. We currently offer 91 floor plans for order.

Contact Us

  • 10655 Hwy 43 Russellville, AL 35653

Our FMHA member Retailers

Yurezz Home Center of Lake Wales
14600 Hwy 27, Unit A, Lake Wales, FL 33859
(912) 240-0111
Florida Modular Homes
2372 Blanding Blvd, Middleburg, FL 32068
(904) 589-9585
Affordable Homes of Defuniak Springs
5400 US-331, Defuniak Springs, FL 32435
(850) 520-5082
Regional Homes of Panama City
2510 E. 15th Street, Panama City, FL 32405
(850) 769-5556

Showing 49-60 of 91 homes for order from Franklin Homes

Prefab Cottage Series / Ivy 8020-58-2-30

  • 2
  • 2
  • 1475 ft²
  • 2x wide
ManufacturedModularMH Advantage

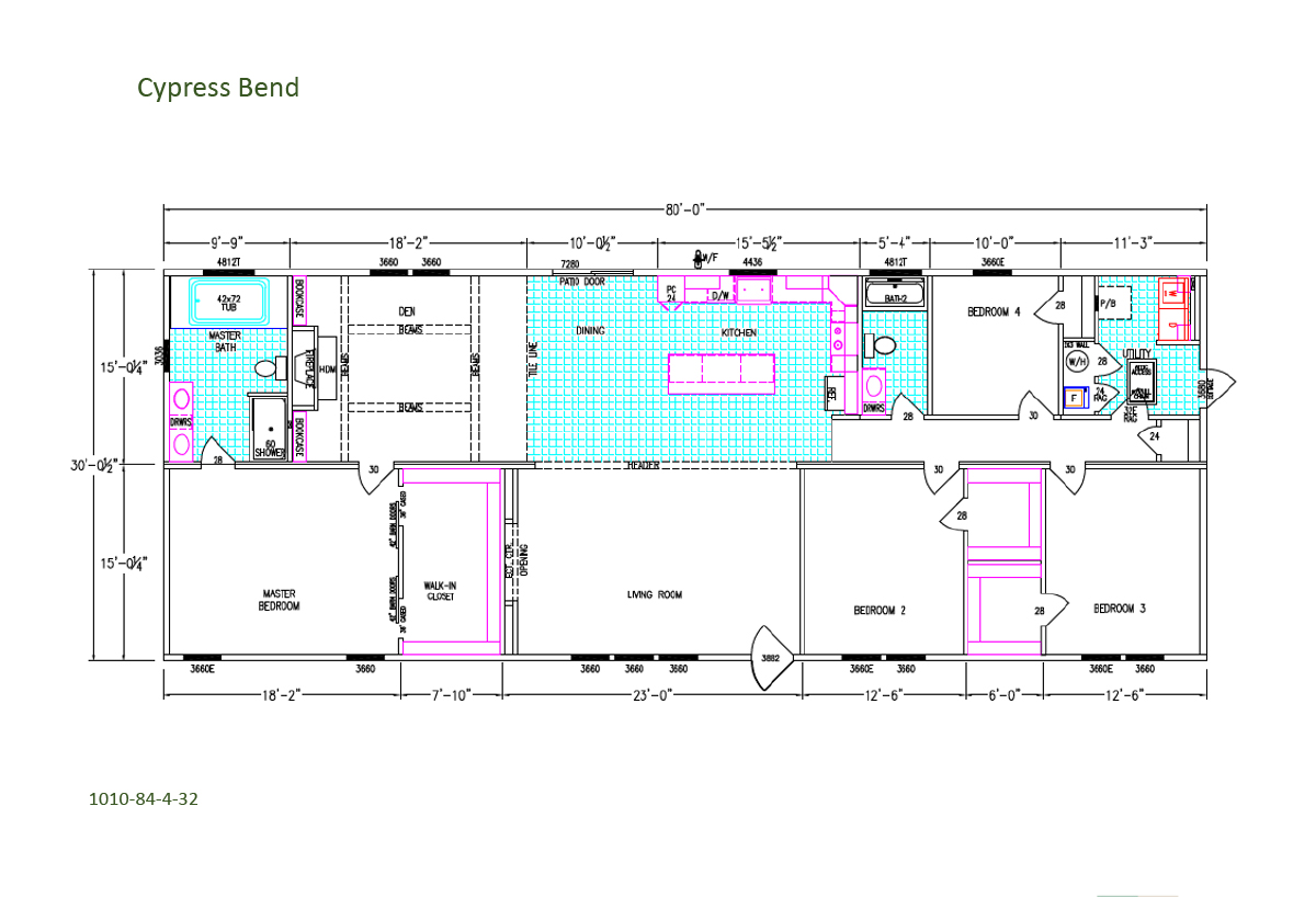
Classic Series DW / Cypress Bend 1010-84-4-32

  • 4
  • 2
  • 2400 ft²
  • 2x wide
ManufacturedModularMH Advantage

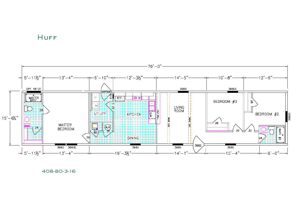
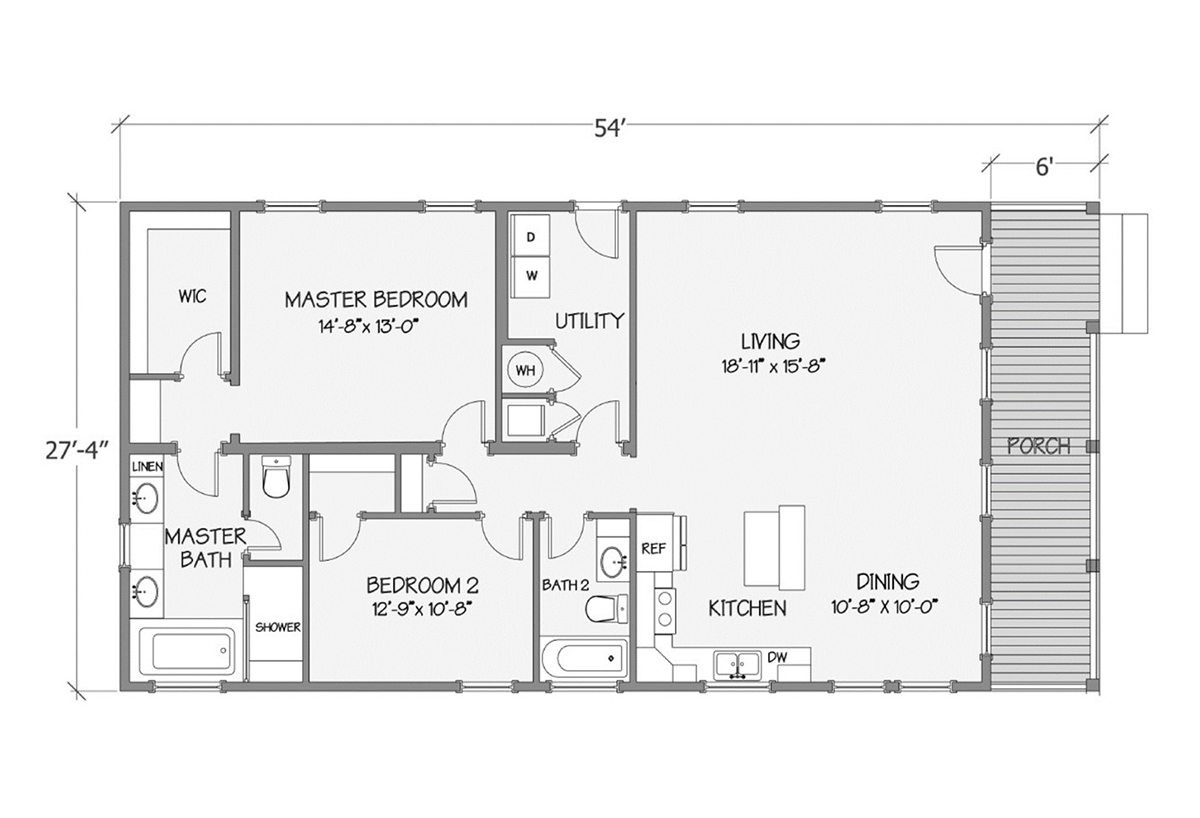
Classic Series SW / Huff 408-80-3-16

  • 3
  • 2
  • 1180 ft²
  • 1x wide
ManufacturedModular

Essentials Series / The Maggie 623-84-4-32

  • 4
  • 2
  • 2400 ft²
  • 2x wide
ManufacturedModularMH Advantage

Classic Series SW / Houston 409-70-2-16

  • 2
  • 2
  • 1025 ft²
  • 1x wide
ManufacturedModular

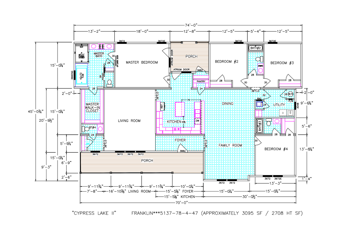
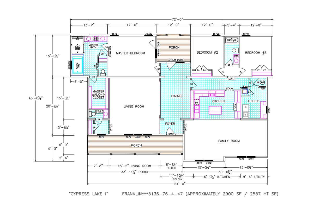
Prefab Series / Jasmine II 5118-78-4-47

  • 4
  • 2
  • 2477 ft²
  • 3x wide
ManufacturedModularMH Advantage

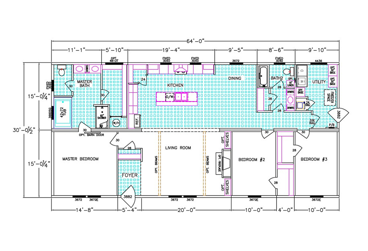
Classic Series DW / Lauderdale 5096-84-4-32

  • 4
  • 2
  • 2400 ft²
  • 2x wide
ManufacturedModularMH Advantage

Classic Series DW / Laurel 5086-82-4-32

  • 4
  • 3
  • 2340 ft²
  • 2x wide
ManufacturedModularMH Advantage

Classic Series DW / Lincoln 1014-68-3-32

  • 3
  • 2
  • 1920 ft²
  • 2x wide
ManufacturedModularMH Advantage
¿Hablas español?